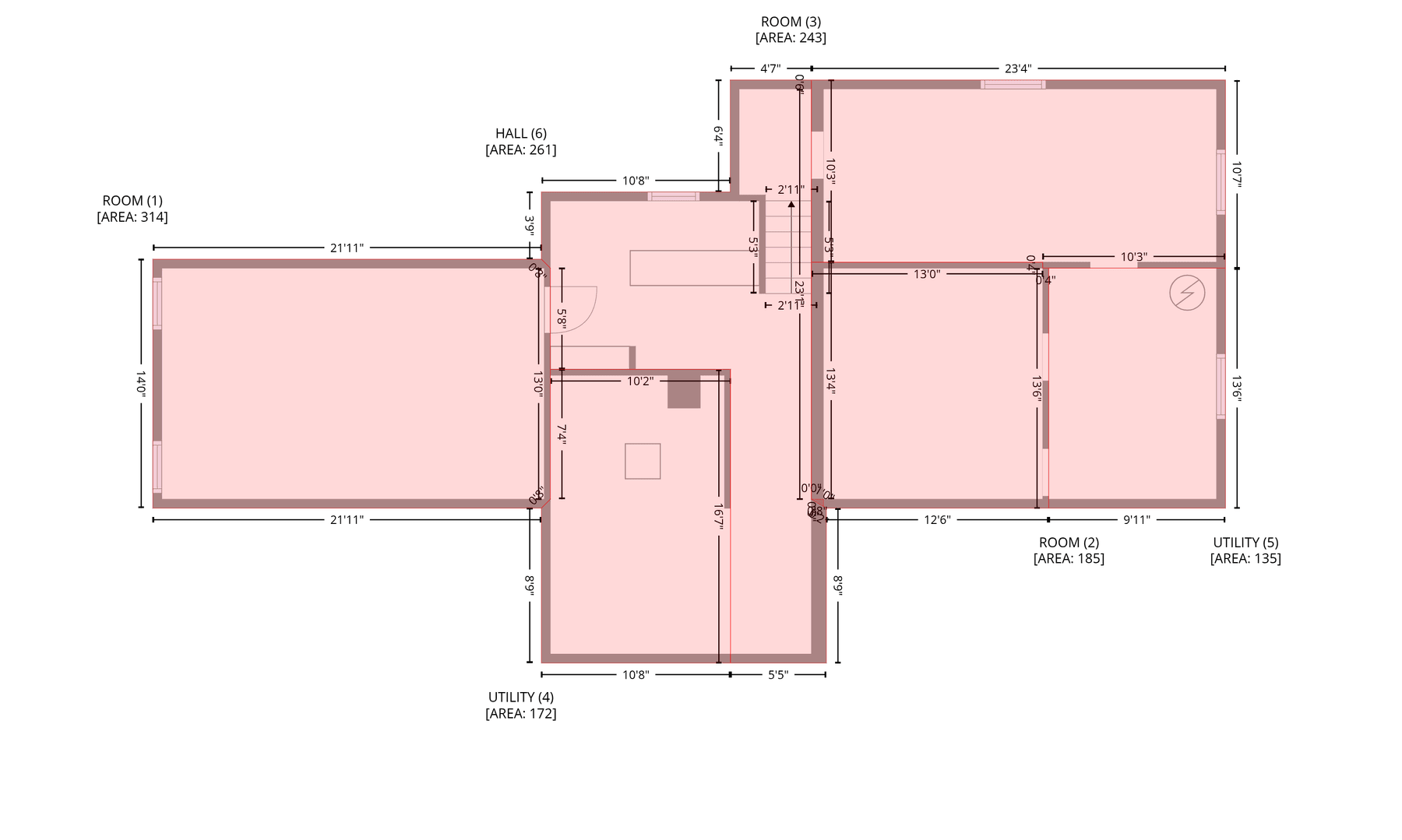
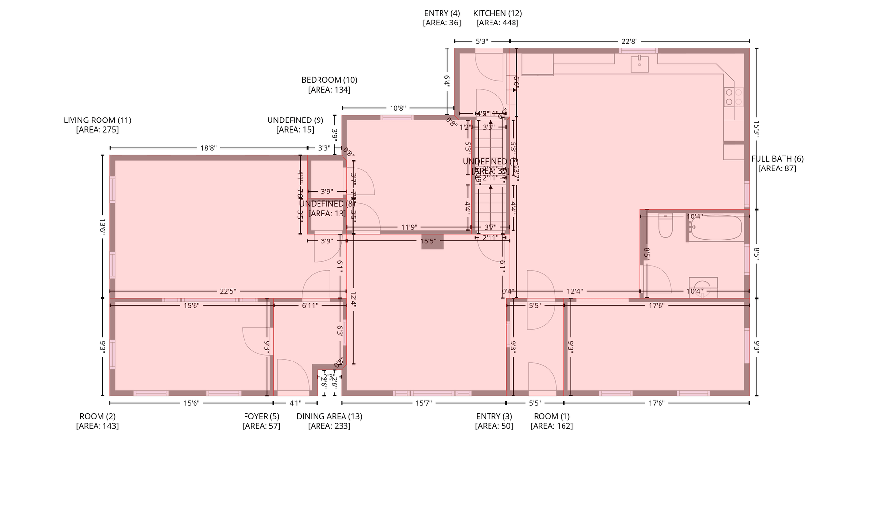
Real Estate: Country living awaits you – Great bones - 5-bedroom, 2-bath farmhouse built in 1930 with 2.37 Acres. – new furnace +/- 2 years old – Full basement - 1st floor laundry – gas heat – large rooms – large country kitchen – older green house - Workshop - 2 Car detached garage – Well - Septic - Artesian well - big open back yard with lots of room to grow - stunning views – La Crosse County Parcel will be sold for one money – 003000768000 approx. 2.37 acres – any mineral rights owned by the seller will transfer to the new owner. View www.assuredrealtysolutions.com The home needs work; the same owner has lived there for 54 years, and the last remodel was in 1978.


